Top.Mail.Ru

Антона Петрова, 210Бк1

Дом является частью ЖК Дом культуры
Застройщик ООО "СЗ АВАСТРОЙ"
Срок сдачи 2027
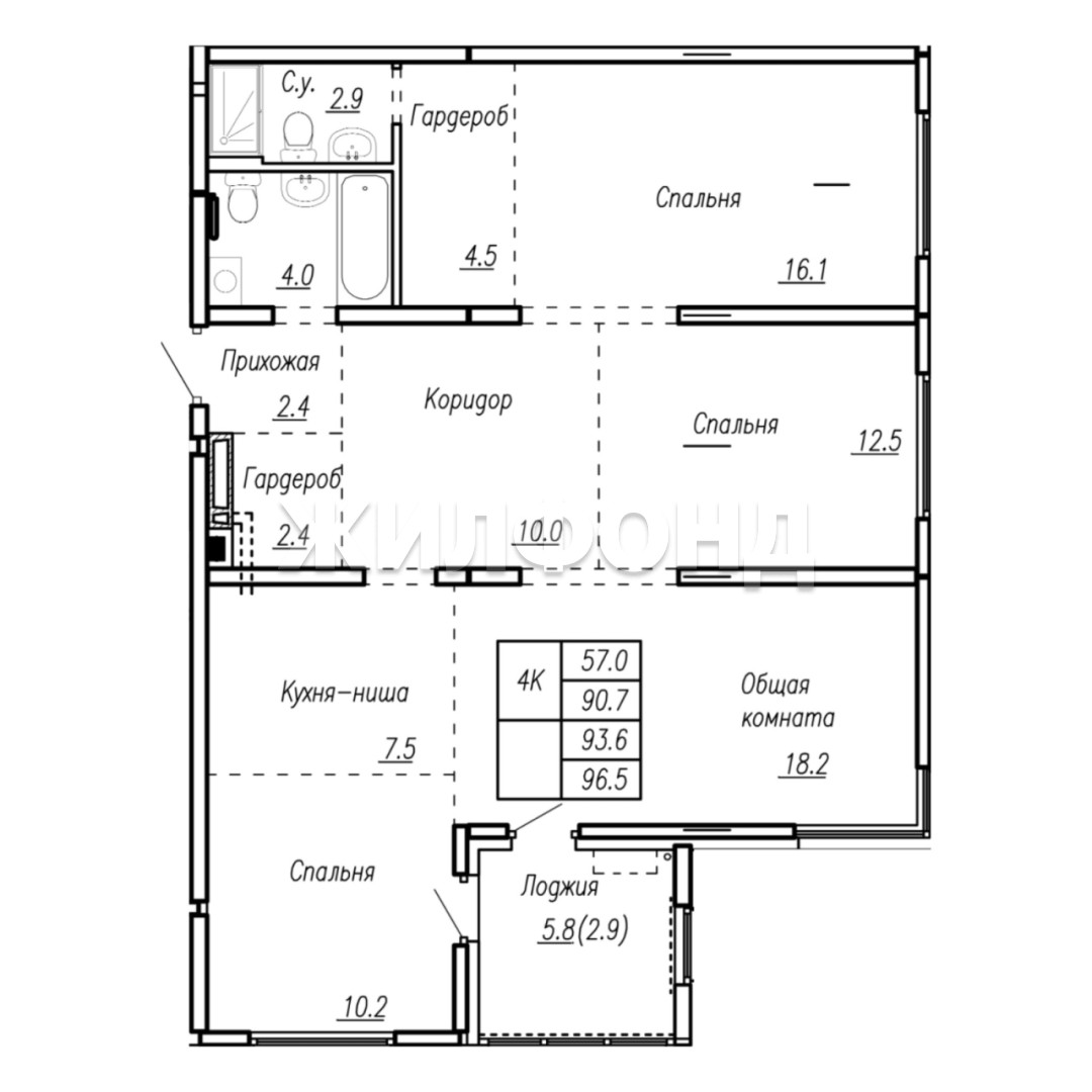
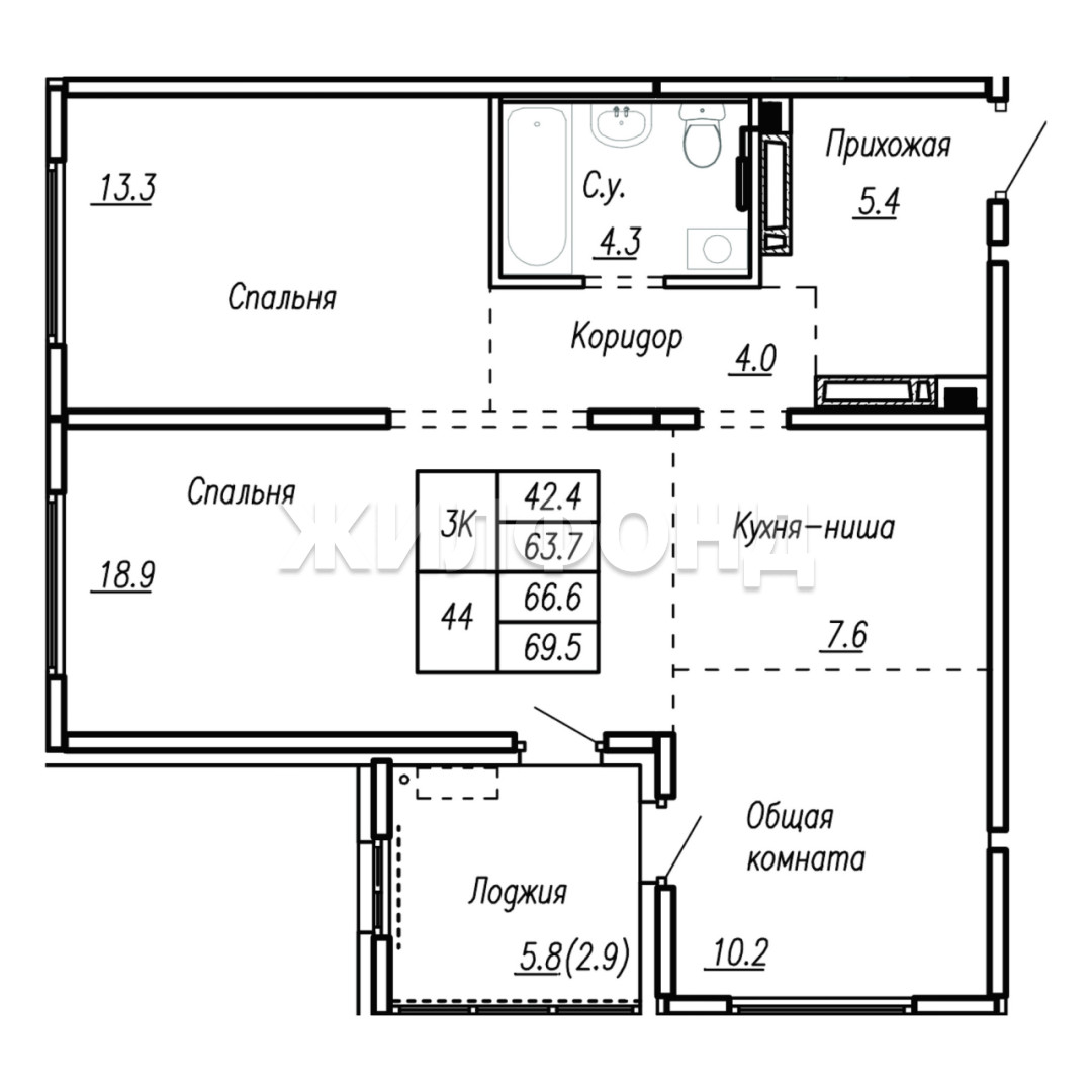
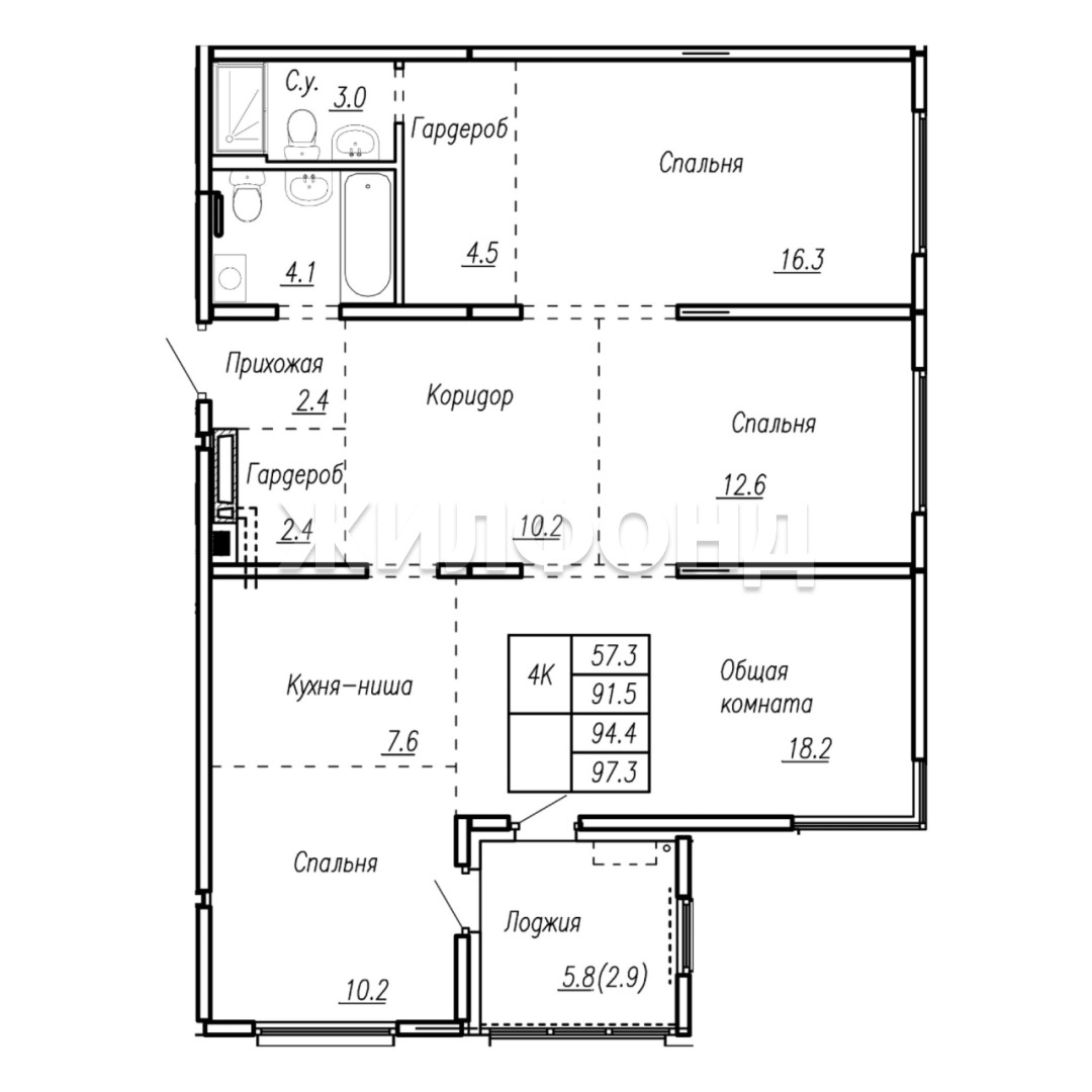
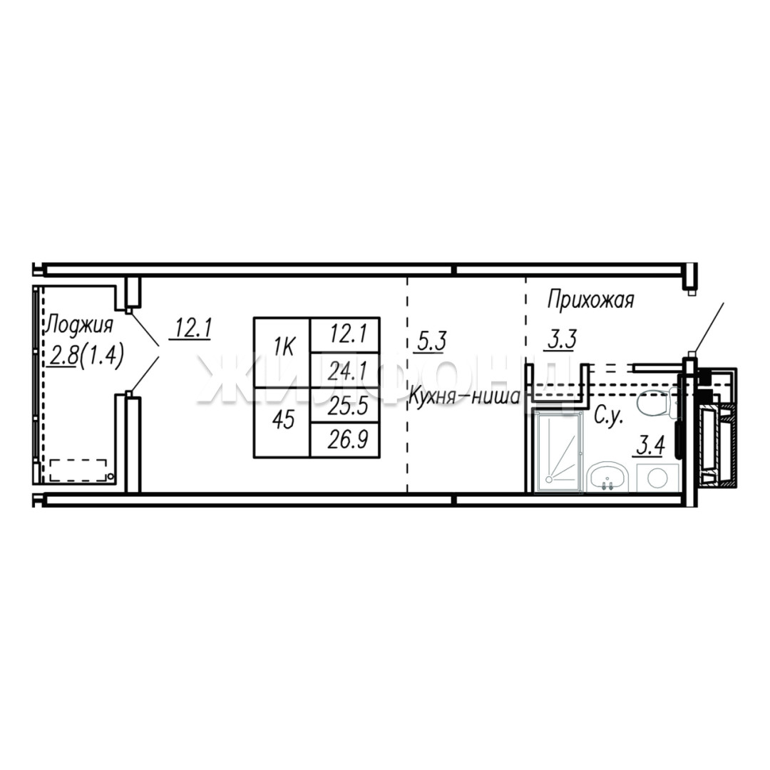
Квартир на продажу 15 (посмотреть)

Жилой Комплекс Дом культуры будет состоять из двух панельных корпусов 17 и 22 этажей, а также здания Центра дополнительного образования.

ЖК будет расположен в удобном районе с богатой социальной инфраструктурой: школы, детские сады и спортивные комплексы в шаговой доступности.

На первом этаже будет располагаться коммерческая недвижимость. Для хранения автомобилей предусмотрен подземный паркинг с лифтовым доступом.

Территория комплекса будет закрытой, а охраняемый двор обеспечит безопасность и спокойствие жителей.

Предусмотрены помещения для размещения консьержа и охраны. Также в комплексе будут оборудованы кладовые для удобного хранения личных вещей.

keys
Подписка на Жилфонд

Получайте уведомления о свежих новостях в своем браузере