Top.Mail.Ru

им А. Мельникова, 1

Дом является частью ЖК Спектр
Застройщик ООО "СЗ ДСК"
Срок сдачи 2026
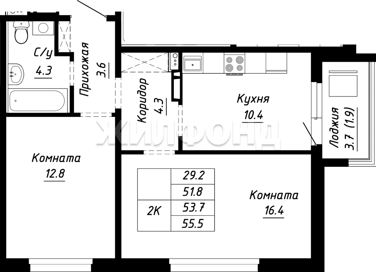
Квартир на продажу 2 (посмотреть)

ЖК Спектр - новый проект в индустриальном районе города Барнаула, площадью 86 гектаров.

Жилой комплекс предложит своим жильцам широкий спектр планировочных решений, подходящих для покупателей, которые еще не думают о создании семьи, и пар самого разного возраста, и семей с детьми.

А использование технологии панельного строительства, гарантирует не только надежность и долговечность, но и короткие сроки строительства.

Весомыми преимуществами для жильцов станут не только удобные планировки и перспективность района, но и удобный подземный паркинг, удобные входные группы, вход в которые исключает ступени и пандусы, вместительные кладовые идеально подходящие для хранения летнего или зимнего спортивного инвентаря, а также удобные колясочные.

Придомовая территория ЖК однозначно определит его в категорию любимого двора с широкими возможностями для отдыха и активного досуга, как для взрослых, так и для маленьких жильцов.

Этаж Квартиры
8
44 м2
5 800 000 ₽
1
54 м2
6 605 000 ₽
keys
Подписка на Жилфонд

Получайте уведомления о свежих новостях в своем браузере